Der schlichte Bungalow bietet einen besonders komfortablen, modernen Lifestyle ohne Treppensteigen. Alle Räume sind auf den 105 m² Wohnfläche ebenerdig angeordnet und sind die Grundlage für ein barrierefreies Wohnen. Die durchdachte Planung sorgt für helle, offene Räume und ein Leben mit der Natur. Wer zusätzliche Lagerräume braucht, kann diese mit einem Keller oder einer Garage mit Nebenräumen lösen.
Wird dieser Bungalow mit dem gefüllten V38W Ziegel gebaut, gewinnen Sie bei gleicher Außengröße 3 m² und vergrößern die Wohnfläche auf 111 m².
Ansicht
Carousel mit Hausansichten
Carousel mit Nachtansichten
Carousel mit Rückansichten
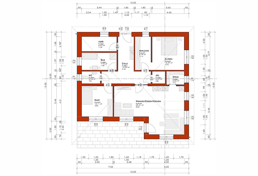
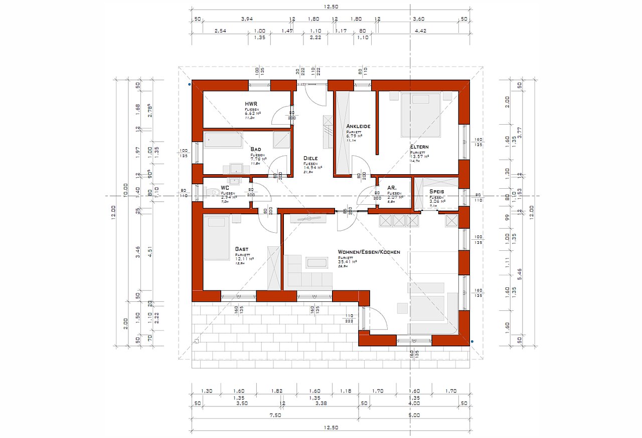
Grundriss Erdgeschoß
Nutzfläche:
Terrasse:
105 m²
38 m²
Erdgeschoß
Nutzfläche:
Terrasse:
108 m²
38 m²
Erdgeschoß
Nutzfläche:
Terrasse:
111 m²
38 m²
Dieser Grundriss hat einen hellen, offenen Wohn-, Ess- und Kochbereich und schafft mit einem Kinderzimmer genug Wohnraum für eine kleine Familie.
Der Abstell- und Technikraum ist im Erdgeschoß integriert und ersetzt den Keller.
EG
Anschlussdetails
Die Wärmeverluste über die Außenhülle machen einen großen Teil des Energiebedarfs aus. In den letzten Jahren konnte durch die Verbesserung des Wärmeschutzes aller Außenbauteile eine erhebliche Verringerung dieser Transmissionswärmeverluste erreicht werden.
Einen beträchtlichen Anteil der Transmissionswärmeverluste machen die sogenannten "Wärmebrückenverluste" aus. Werden diese in einem guten Standard ausgeführt kann der Heizenergiebedarf erheblich gesenkt werden.
Oberste Geschoßdecke – Traufe - 50 cm
Die Übermauerung der Traufe erfolgt zweckmäßig ebenfalls mit 50er Ziegel. Die Verankerung der Mauerbank im Deckenrost lässt sich durch die Ziegelscharen führen. Eine gute Dämmung ist hier besonders kostengünstig möglich. Diese Ausführung ist wärmebrückenoptimiert.
Oberste Geschoßdecke – Traufe - 42,5 cm
Die Übermauerung der Traufe erfolgt zweckmäßig ebenfalls mit 42,5 cm Ziegel. Die Verankerung der Mauerbank im Deckenrost lässt sich durch die Ziegelscharen führen. Eine gute Dämmung ist hier besonders kostengünstig möglich.
Oberste Geschoßdecke – Traufe - 38 cm
Die Übermauerung der Traufe erfolgt zweckmäßig ebenfalls mit 38er Ziegel. Die Verankerung der Mauerbank im Deckenrost lässt sich durch die Ziegelscharen führen. Eine gute Dämmung ist hier besonders kostengünstig möglich.
Raffstorekasten vorgesetzt - 50 cm
Dieses Hochbaudetail berücksichtigt Deckenauflager, Raffstorekasten und Fenstereinbau und ist ideal für vorgesetzte Raffstorekästen bei hohen Fenstern und Türen. Bei geringeren Raffstorehöhen kann der Sturz tiefer gesetzt werden.
Unter die Rostdämmung und dem Rost muss, um die Auflagerkräfte gleichmäßig zu verteilen und das Eindringen von Beton in die Ziegelhohlräume zu verhindern, eine besandete Bitumenbahn gelegt werden.
Raffstorekasten vorgesetzt - 42,5 cm
Dieses Hochbaudetail berücksichtigt Deckenauflager, Raffstorekasten und Fenstereinbau und ist ideal für vorgesetzte Raffstorekästen bei hohen Fenstern und Türen. Bei geringeren Raffstorehöhen kann der Sturz tiefer gesetzt werden.
Unter die Rostdämmung und dem Rost muss, um die Auflagerkräfte gleichmäßig zu verteilen und das Eindringen von Beton in die Ziegelhohlräume zu verhindern, eine besandete Bitumenbahn gelegt werden.
Raffstorekasten vorgesetzt - 38 cm
Dieses Hochbaudetail berücksichtigt Deckenauflager, Raffstorekasten und Fenstereinbau und ist ideal für vorgesetzte Raffstorekästen bei hohen Fenstern und Türen. Bei geringeren Raffstorehöhen kann der Sturz tiefer gesetzt werden.
Unter die Rostdämmung und dem Rost muss, um die Auflagerkräfte gleichmäßig zu verteilen und das Eindringen von Beton in die Ziegelhohlräume zu verhindern, eine besandete Bitumenbahn gelegt werden.
EDER Laibungsziegel - 50 cm
Der EDER Laibungsziegel ist die ideale Basis für den hochwertigen Fenstereinbau.
Durch seine Formgebung ist ein optimaler Lichteinfall und eine normgerechte Fenstermontage ohne zusätzliche Maßnahmen leicht möglich. Bei der Fenstermontage muss auf eine luftdichte Ausführung geachtet werden.
Zugsäule in Außenkante - 50 cm
Abhängig von der statischen Bemessung kann die Notwendigkeit von Zugsäulen in den Außenkanten der Außenwände des obersten Geschoßes gegeben sein. Es gilt, nachteilige Auswirkungen an dieser sensiblen Stelle auf die thermischen Werte möglichst zu verhindern.
Für das Einbinden und die Betonüberdeckung der Stahlstangen reicht in der Regel ein Betonquerschnitt von 10 x 10 cm. Damit sind ein einfaches Schnittmuster der Ziegel und ein rascher Baufortschritt sichergestellt.
Zugsäule in Außenkante - 42,5 cm
Abhängig von der statischen Bemessung kann die Notwendigkeit von Zugsäulen in den Außenkanten der Außenwände des obersten Geschoßes gegeben sein. Es gilt, nachteilige Auswirkungen an dieser sensiblen Stelle auf die thermischen Werte möglichst zu verhindern.
Für das Einbinden und die Betonüberdeckung der Stahlstangen reicht in der Regel ein Betonquerschnitt von 10 x 10 cm. Damit sind ein einfaches Schnittmuster der Ziegel und ein rascher Baufortschritt sichergestellt.
Zugsäule in Außenkante - 38 cm
Abhängig von der statischen Bemessung kann die Notwendigkeit von Zugsäulen in den Außenkanten der Außenwände des obersten Geschoßes gegeben sein. Es gilt, nachteilige Auswirkungen an dieser sensiblen Stelle auf die thermischen Werte möglichst zu verhindern.
Für das Einbinden und die Betonüberdeckung der Stahlstangen reicht in der Regel ein Betonquerschnitt von 10 x 10 cm. Damit sind ein einfaches Schnittmuster der Ziegel und ein rascher Baufortschritt sichergestellt.
Fensterbrüstung - V50
Das monolithische Ziegelmauerwerk kann die Lasten des Fensters direkt, ohne aufwändigen Blindrahmen, aufnehmen. Für den luftdichten Einbau empfehlen wir einen Glattstrich über die gesamte Fensterbrüstung. Mit einer Klebespachtel und der Verwendung eines zusätzlichen Armierungsgewebes kann der Glattstrich sauber und dünnschichtig ausgeführt werden.
Durch die Verwendung einer Brüstungsdämmung mittels einer 2-3 cm dicken Hartschaumplatte lässt sich die thermische Qualität weiter verbessern.
Bodenplatte auf Streifenfundament - 50 cm
Die Bodenplatte ist einer der wichtigsten Teile der äußeren Gebäudehülle, sie grenzt direkt an das umgebende (kalte) Erdreich. Die Dämmung kann nachträglich nicht mehr korrigiert werden kann. Die gängigste Lösung ist eine Bodenplatte mit einer zumindest 80 cm tiefen Frostschürze. Um den Feuchtetransport von unten nach oben zu unterbinden, wird unter der Mörtelausgleichsschicht der ersten Schar eine Mauersperrbahn eingebaut. Beim überdämmten Sockel wird die erste Ziegelschar idealerweise mit gefüllten EDER V38W Vollwertziegeln ausgeführt.
Bodenplatte auf Streifenfundament - 42,5 cm
Die Bodenplatte ist einer der wichtigsten Teile der äußeren Gebäudehülle, sie grenzt direkt an das umgebende (kalte) Erdreich. Die Dämmung kann nachträglich nicht mehr korrigiert werden kann. Die gängigste Lösung ist eine Bodenplatte mit einer zumindest 80 cm tiefen Frostschürze. Um den Feuchtetransport von unten nach oben zu unterbinden, wird unter der Mörtelausgleichsschicht der ersten Schar eine Mauersperrbahn eingebaut. Beim überdämmten Sockel wird die erste Ziegelschar idealerweise mit gefüllten EDER V30W Vollwertziegeln ausgeführt.
Bodenplatte auf Streifenfundament - 38 cm
Die Bodenplatte ist einer der wichtigsten Teile der äußeren Gebäudehülle, sie grenzt direkt an das umgebende (kalte) Erdreich. Die Dämmung kann nachträglich nicht mehr korrigiert werden kann. Die gängigste Lösung ist eine Bodenplatte mit einer zumindest 80 cm tiefen Frostschürze. Um den Feuchtetransport von unten nach oben zu unterbinden, wird unter der Mörtelausgleichsschicht der ersten Schar eine Mauersperrbahn eingebaut. Beim überdämmten Sockel wird die erste Ziegelschar idealerweise mit gefüllten EDER V30W Vollwertziegeln ausgeführt.
Baudetailbeschreibung der Bauteile mit U-Wert und Stärke
Bild
Bauteil
Stärke in cm
U-Wert W/m2K
Aussenwand:
Mineralischer Innenputz Eder V50
EDERPLAN XP50 plus Leichtgrundputz außen
1,5 50,0
50,0 2,5
0,12
0,16
Der Eder V50 mit Deckelmörtel vermauert erzielt bereits mit 2,5 cm Leichtgrundputz einen U-Wert von 0,12 W/m²K.
Baudetailbeschreibung der Bauteile mit U-Wert und Stärke
Bild
Bauteil
Stärke in cm
U-Wert W/m2K
Oberste Geschossdecke:
Mineralischer Innenputz Planziegeldecke Dämmung
1,5 17+5 36,0
0,12
EDER Ziegeldecken bieten eine ausgewogene Kombination aus Ziegel und Vergussbeton und schaffen ein angenehmes Raumklima.
Baudetailbeschreibung der Bauteile mit U-Wert und Stärke
Bild
Bauteil
Stärke in cm
U-Wert W/m2K
Bodenplatte:
Fußbodenbelag
Estrich
Polystorol (Dämmung)
Polystorolschüttung
Bitumenbahn
Stahlbeton
Rollierung
1,5
7
12
9
0,5
25
20
0,20
Die hohen Anforderungen an den Feuchteschutz verlangen eine sorgfältige Planung und Ausführung.
Baudetailbeschreibung der Bauteile mit U-Wert und Stärke
Bild
Bauteil
Stärke in cm
U-Wert W/m2K
Fenster: Holz-Alu oder Kunststoff:
Rahmen Uf = 0,96 W/m²K Glas Ug = 0,60 W/m²K Energiedurchlassgrad g = 0,61 Abstandhalter ψ = 0,033 W/mK
Qualität und richtiger Einbau der Fenster sind bei einer hochwärmedämmenden Gebäudehülle besonders wichtig.
Baudetailbeschreibung der Bauteile mit U-Wert und Stärke
Bild
Bauteil
Stärke in cm
U-Wert W/m2K
Aussenwand:
Mineralischer Innenputz Eder V42,5W Leichtgrundputz außen
1,5 42,5 2,5
0,16
Der Eder V42,5W mit Deckelmörtel vermauert erzielt bereits mit 2,5 cm Leichtgrundputz einen U-Wert von 0,16 W/m²K.
Baudetailbeschreibung der Bauteile mit U-Wert und Stärke
Bild
Bauteil
Stärke in cm
U-Wert W/m2K
Oberste Geschossdecke:
Mineralischer Innenputz Planziegeldecke Dämmung
1,5 17+5 36,0
0,12
EDER Ziegeldecken bieten eine ausgewogene Kombination aus Ziegel und Vergussbeton und schaffen ein angenehmes Raumklima.
Baudetailbeschreibung der Bauteile mit U-Wert und Stärke
Bild
Bauteil
Stärke in cm
U-Wert W/m2K
Bodenplatte:
Fußbodenbelag
Estrich
Polystorol (Dämmung)
Polystorolschüttung
Bitumenbahn
Stahlbeton
Rollierung
1,5
7
12
9
0,5
25
20
0,20
Die hohen Anforderungen an den Feuchteschutz verlangen eine sorgfältige Planung und Ausführung.
Baudetailbeschreibung der Bauteile mit U-Wert und Stärke
Bild
Bauteil
Stärke in cm
U-Wert W/m2K
Fenster: Holz-Alu oder Kunststoff:
Rahmen Uf = 0,96 W/m²K Glas Ug = 0,60 W/m²K Energiedurchlassgrad g = 0,61 Abstandhalter ψ = 0,033 W/mK
Qualität und richtiger Einbau der Fenster sind bei einer hochwärmedämmenden Gebäudehülle besonders wichtig.
Baudetailbeschreibung der Bauteile mit U-Wert und Stärke
Bild
Bauteil
Stärke in cm
U-Wert W/m2K
Aussenwand:
Mineralischer Innenputz EDER V38W Leichtgrundputz außen
1,5 38,0 2,5
0,18
Der EDER V38W mit Deckelmörtel vermauert erzielt bereits mit 2,5 cm Leichtgrundputz einen U-Wert von 0,18 W/m²K.
Baudetailbeschreibung der Bauteile mit U-Wert und Stärke
Bild
Bauteil
Stärke in cm
U-Wert W/m2K
Oberste Geschossdecke:
Mineralischer Innenputz Planziegeldecke Dämmung
1,5 17+5 36,0
0,12
EDER Ziegeldecken bieten eine ausgewogene Kombination aus Ziegel und Vergussbeton und schaffen ein angenehmes Raumklima.
Baudetailbeschreibung der Bauteile mit U-Wert und Stärke
Bild
Bauteil
Stärke in cm
U-Wert W/m2K
Bodenplatte:
Fußbodenbelag
Estrich
Polystorol (Dämmung)
Polystorolschüttung
Bitumenbahn
Stahlbeton
Rollierung
1,5
7
12
9
0,5
25
20
0,20
Die hohen Anforderungen an den Feuchteschutz verlangen eine sorgfältige Planung und Ausführung.
Baudetailbeschreibung der Bauteile mit U-Wert und Stärke
Bild
Bauteil
Stärke in cm
U-Wert W/m2K
Fenster: Holz-Alu oder Kunststoff:
Rahmen Uf = 0,96 W/m²K Glas Ug = 0,60 W/m²K Energiedurchlassgrad g = 0,61 Abstandhalter ψ = 0,033 W/mK
Qualität und richtiger Einbau der Fenster sind bei einer hochwärmedämmenden Gebäudehülle besonders wichtig.
Baudetailbeschreibung der Bauteile mit U-Wert und Stärke
Bild
Bauteil
Stärke in cm
U-Wert W/m2K
Aussenwand:
Mineralischer Innenputz Eder V50
EDERPLAN XP50 plus Leichtgrundputz außen
1,5 50,0
50,0 2,5
0,12
0,16
Oberste Geschossdecke:
Mineralischer Innenputz Planziegeldecke Dämmung
1,5 17+5 36,0
0,12
Bodenplatte:
Fußbodenbelag
Estrich
Polystorol (Dämmung)
Polystorolschüttung
Bitumenbahn
Stahlbeton
Rollierung
1,5
7
12
9
0,5
25
20
0,20
Fenster: Holz-Alu oder Kunststoff:
Rahmen Uf = 0,96 W/m²K Glas Ug = 0,60 W/m²K Energiedurchlassgrad g = 0,61 Abstandhalter ψ = 0,033 W/mK
Bild
Bauteil
Stärke in cm
U-Wert W/m2K
Aussenwand:
Mineralischer Innenputz Eder V42,5W Leichtgrundputz außen
1,5 42,5 2,5
0,16
Oberste Geschossdecke:
Mineralischer Innenputz Planziegeldecke Dämmung
1,5 17+5 36,0
0,12
Bodenplatte:
Fußbodenbelag
Estrich
Polystorol (Dämmung)
Polystorolschüttung
Bitumenbahn
Stahlbeton
Rollierung
1,5
7
12
9
0,5
25
20
0,20
Fenster: Holz-Alu oder Kunststoff:
Rahmen Uf = 0,96 W/m²K Glas Ug = 0,60 W/m²K Energiedurchlassgrad g = 0,61 Abstandhalter ψ = 0,033 W/mK
Bild
Bauteil
Stärke in cm
U-Wert W/m2K
Aussenwand:
Mineralischer Innenputz EDER V38W Leichtgrundputz außen
1,5 38,0 2,5
0,18
Oberste Geschossdecke:
Mineralischer Innenputz Planziegeldecke Dämmung
1,5 17+5 36,0
0,12
Bodenplatte:
Fußbodenbelag
Estrich
Polystorol (Dämmung)
Polystorolschüttung
Bitumenbahn
Stahlbeton
Rollierung
1,5
7
12
9
0,5
25
20
0,20
Fenster: Holz-Alu oder Kunststoff:
Rahmen Uf = 0,96 W/m²K Glas Ug = 0,60 W/m²K Energiedurchlassgrad g = 0,61 Abstandhalter ψ = 0,033 W/mK
EDER V38W
Eder V38W
Mit dem EDER V38W ist das Bauen auch auf kleinen Grundstücken und im verdichteten Siedlungsbau ohne Abstriche bei Wärme- und Schallschutz möglich. Er erzielt mit breiteren Stegen und dem speziellen Lochbild einen U-Wert von 0,18 W/m²K.
Eder V42,5W
Eder V42,5W
Bereits bei einer Mauerwerkstärke von 42,5 cm erzielt er einen U-Wert von 0,16 W/m²K. Er kombiniert die bauphysikalischen Anforderungen an das Außenmauerwerk in idealer Weise.
Energiedurchlassgrad g
ENERGIEDURCHLASSGRAD G
Der g-Wert ist ein Maß für den Energiedurchlassgrad transparenter Bauteile.
Je höher der Wert, umso mehr Sonnenenergie gelangt von außen in den Raum.
Wärmebrücken
WÄRMEBRÜCKEN
Wärmebrücken sind Stellen in der Gebäudehülle, durch die mehr Wärme nach außen fließtals durch die angrenzenden „normalen“ Bauteile.
EDERPLAN XP50 plus
EDERPLAN XP50 plus
Der Ederplan XP 50 plus, in 24,9 cm Höhe und mit Deckelmörtel verarbeitet, schafft mit seinem innovativen Lochbild und seiner einzigartigen Rohstoffzusammensetzung einen U-Wert von 0,16 unverputzt.
Eder V38
EDER V38
Mit dem EDER V38 ist das Bauen auch auf kleinen Grundstücken und im verdichteten Siedlungsbau ohne Abstriche bei Wärme- und Schallschutz möglich. Er erzielt mit dem speziellen Lochbild einen U-Wert von 0,16 W/m²K.
U-Wert
U-WERT
Der U-Wert gibt den Wärmeverlust durch einen Bauteil in Watt pro m² und Kelvin an (U=W/m²K). Je kleiner der U-Wert, desto besser ist die Wärmedämmung.
Photovoltaik
PHOTOVOLTAIK
Als Photovoltaik bezeichnet man die direkte Umwandlung von Lichtenergie in elektrische Energie. Die Stromgewinnung aus Sonnenlicht erfolgt mit Hilfe von Solarzellen vollkommen emissions- und geräuschfrei. Sobald Sonne auf die Solarzellen scheint, baut sich eine elektrische Spannung auf und es fließt Gleichstrom. Je größer die Einstrahlung ist, umso größer ist auch der Stromfluss. Der Strom wird meist durch einen Wechselrichter in Wechselstrom umgewandelt, entweder direkt vom Verbraucher genutzt oder in das Stromnetz eingespeist. Ist kein Stromnetz vorhanden, kann der erzeugte Strom in Batterien gespeichert werden.
Komfortlüftung
KOMFORTLÜFTUNG
Eine kontrollierte Wohnraumlüftung ist eine Zu- und Abluftanlage mit Wärmerückgewinnung. Gesunde Raumluft, hoher Komfort und hohe Energieeffizienz sind die wesentlichen Argumente für eine Komfortlüftung.
Iso-Korb
ISO-KORB
Der „Isokorb“ ist die optimale Lösung zur Vermeidung von Wärmebrücken bei auskragendenStahlbetonteilen wie z.B. einem Balkon. Aus einer Vielzahl an Varianten findet der Baufachmann den idealen Isokorb für jeden Anwendungsfall.
Zugsäulen
ZUGSÄULEN
Zugsäulen werden aus statischen Gründen in das Ziegelmauerwerk eingebaut. Die mit Beton ummantelten Stahlstangen verbinden, meist an den Außenkanten von Gebäuden, die Betonroste vertikal fest miteinander.
Armierungsgewebe
ARMIERUNGSGEWEBE
Unter Armierungsgewebe versteht man ein Textilglasgitter mit einer Maschenweite von ca. 3 mm, das zum Einbetten in Spachtelmassen vorgesehen ist. Risse werden dadurch minimiert.
EDER Laibungsziegel
EDER LAIBUNGSZIEGEL
Der Laibungsziegel ist ein Formziegel für das 50 cm Mauerwerk, der für einen optimalen Lichteinfall und Fensteranschluss sorgt.
Bitumenbahn
BITUMENBAHN
Bahnen für die Abdichtung von nicht genutzten und genutzten Dachflächen müssen für den Verwendungszweck geeignet sowie aufeinander abgestimmt sein. Bitumendachbahn dient als Feuchtigkeitssperre in und auf Bauteilen. Bitumenbahnen bestehen i. d. R. aus Trägereinlagen und beidseitigen Bitumendeckschichten.
Rostdämmung
ROSTDÄMMUNG
Beim 50 cm Mauerwerk wird mit Hilfe der Rostdämmung eine Wärmebrücke im Bereich der Deckenauflager verhindert. Je besser die Wärmedämmung der Rostdämmung ist, umso geringer ist die Wärmebrücke.
Rostziegel
ROSTZIEGEL
Rostziegel sind Ziegel, die als Abmauerung im Bereich der Geschoßdecken verwendet werden. Sie stellen den außenseitigen Abschluss der Decke dar und bilden einen optimalen Grund für den Außenputz.
Perimeterdämmung
PERIMETERDÄMMUNG
Als Perimeterdämmung bezeichnet man die Wärmedämmung von erdberührenden Bauteilen an ihrer Außenseite. Die Dämmung muss wasser- und druckbeständig sein, daher verwendet man geschlossenporige Schaumstoffe, z. B. extrudierte Polystyrol-Hartschaumplatten (XPS) / Sockeldämmplatten.
Wärmebrücken
WÄRMEBRÜCKEN
Wärmebrücken sind Stellen in der Gebäudehülle, durch die mehr Wärme nach außen fließtals durch die angrenzenden „normalen“ Bauteile.
Attika
ATTIKA
Als Attika bezeichnet man in der Architektur den kranzförmig gemauerten Abschluss von Gebäuden mit Flachdächern.
Sonnenenergie
SONNENENERGIE
Als Sonnenenergie oder Solarenergie bezeichnet man die Energie der Sonnenstrahlung, die in Form von elektrischem Strom, Wärme oder chemischer Energie technisch genutzt werden kann.
Wärmepumpe
WÄRMEPUMPE
Eine Wärmepumpe ist eine Maschine, die thermische Energie mit niedrigerer Temperatur (z.B. Erdreich) aufnimmt und mittels einem elektrischem Verdichter als Nutzwärme mit höherer Temperatur auf das Heizsystem überträgt. Je höher die Temperatur der Energiequelle, umso effizienter arbeitet die Wärmepumpe.
Standard lt. oö WBF
STANDARD LT. OÖ WBF
Die Eigenheimverordnung sieht als Voraussetzung für die Förderbewilligung den Einsatz eines innovativen klimarelevanten Hauptheizsystems vor.
Solaranlage
SOLARANLAGE
Solaranlagen dienen der direkten Nutzung der Sonneneinstrahlung zur Erzeugung von Wärme (Solarthermie) oder Strom (Photovoltaik).
Wärmebrückenberechnung
WÄRMEBRÜCKENBERECHNUNG
Wärmebrücken sind Stellen in der Gebäudehülle, durch die mehr Wärme nach außen fließt als durch die angrenzenden „normalen“ Bauteile.
Diese zusätzlichen Wärmeverluste werden im Energieausweisprogramm pauschal oder detailliert berücksichtigt.
NEZ
NEZ
Diese „Nutzheizenergiekennzahl“ gibt an, wie groß der jährliche Heizwärmebedarf pro Quadratmeter ist und wird mittels eines Energieausweisprogrammes errechnet. Dies ist ein theoretischer Wert bei Standardbedingungen für Außen- und Innenklima.
Gebäudedichtheit
GEBÄUDEDICHTHEIT
Die Gebäudedichtheit wird mit einer Luftdichtheitsmessung (Blower Door Test) festgestellt. Unter Luftwechselrate n50 versteht man die Häufigkeit, wie oft die Luft im Raum- oder Gebäudevolumen in einer Stunde bei dieser Messung ausgetauscht wird. Der n50-Wert gibt an, wie oft die Luft im Gebäudeinnenvolumen bei einem Über- oder Unterdruck von 50 Pa durch undichte Stellen in der Gebäudehülle strömt. Bei einem n50-Wert von 1,0 1/h wechselt das Luftvolumen im Gebäude einmal innerhalb einer Stunde. Die Druckdifferenz von 50 Pa entspricht einem mittleren Sturm, die Testbedingungen sind daher relativ streng.
Rahmen Uf
Uf
= U-Wert des Fensterrahmens
(f=frame)
Glas Ug
Ug
= U-Wert des Glases
(g=glas)
Abstandhalter
Abstandhalter
Der Glasrandverbund von Mehrscheibenisoliergläsern wird mit Glasabstandhaltern hergestellt. Diese weisen je nach Material unterschiedliche Wärmeschutzeigenschaften auf. Üblich sind Abstandhalter aus Kunststoff oder Edelstahl.
Solarverglasung g
Solarverglasung g
Der g-Wert ist ein Maß für den Energiedurchlassgrad transparenter Bauteile.
Je höher der Wert, umso mehr Sonnenenergie gelangt von außen in den Raum.
Schaumglasschotter
Schaumglasschotter
Der Schaumglasschotter (bzw. Glasschaum) ist ein hochwärmedämmendes, lastabtragendes Schüttgut aus 100 % Altglas. Als lastabtragende, wärmedämmende Leichtschüttung unter der Fundamentplatte vereint Schaumglasschotter eine Vielzahl von positiven Eigenschaften, deren Kombination kein anderer Dämmstoff bietet.
Rippenhohlsteindecke
Rippenhohlsteindecke
Die Rippenhohlsteindecke ist eine trägerlose Ziegeldecke, mit patentierter Schalung, die optimal für den Einfamilienhausbau geeignet ist.
Planziegeldecke
Planziegeldecke
Decken bilden ungefähr 40 % der raumumschließenden Flächen. Für ein optimales Raumklima sind sie damit ein entscheidender Faktor. Die kapillare Wirkung des Ziegels nimmt überschüssige Feuchtigkeit auf und gibt sie bei trockener Raumluft wieder ab. So ist die Ziegeldecke auch die perfekte Ergänzung zur Ziegelwand.
Eder V50
Eder V50
Mit einem Wärmedämmwert von U=0,12 ist das Mauerwerk aus dem Eder V50 das am besten wärmedämmende einschalige Ziegelmauerwerk und sorgt mit einem erhöhten Schallschutz für ein ruhiges Wohnen.
Deckelmörtel
DECKELMÖRTEL
Der Deckelmörtel legt sich wie ein Flies zwischen die Ziegelreihen und ist ein mineralischer Mörtel auf Zementbasis. Er verteilt die Lasteintragung von oben gleichmäßig über die gesamte Mauerstärke, verbindet die Ziegelscharen kraftschlüssig miteinander und ist die beste Voraussetzung für eine dauerhaft luftdichte Gebäudehülle.
Leichtgrundputz
Leichtgrundputz
Der Leichtgrundputz ist ein Kalk/Zement-unterputz mit Leichtzuschlag für die maschinelle Verarbeitung. Dieser Putz ist besonders für Fassaden auf hochwärmedämmenden Ziegeln