Eder Trendhaus
Die moderne Architektur mit Flachdach ist einfach und kostengünstig umzusetzen und bietet ausreichend Platz für eine größere Familie. Großzügige Fensterflächen im Süden nutzen die Sonnenenergie optimal und schaffen einen lichtdurchfluteten Innenraum. Die Ausführung ohne Keller ist speziell für ebene Grundstücke geeignet. Optisch bietet dieser Baustil durch verschiedene Farbvarianten viele Gestaltungsmöglichkeiten. Mit dem Einsatz von Fassadenplatten bekommt dieses Haus einen besonders modernen Look.
Grundriss ERDGESCHOSS
Nutzfläche: | 164 m² |
|
|
EG: | 86 m² |
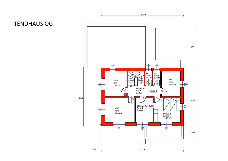
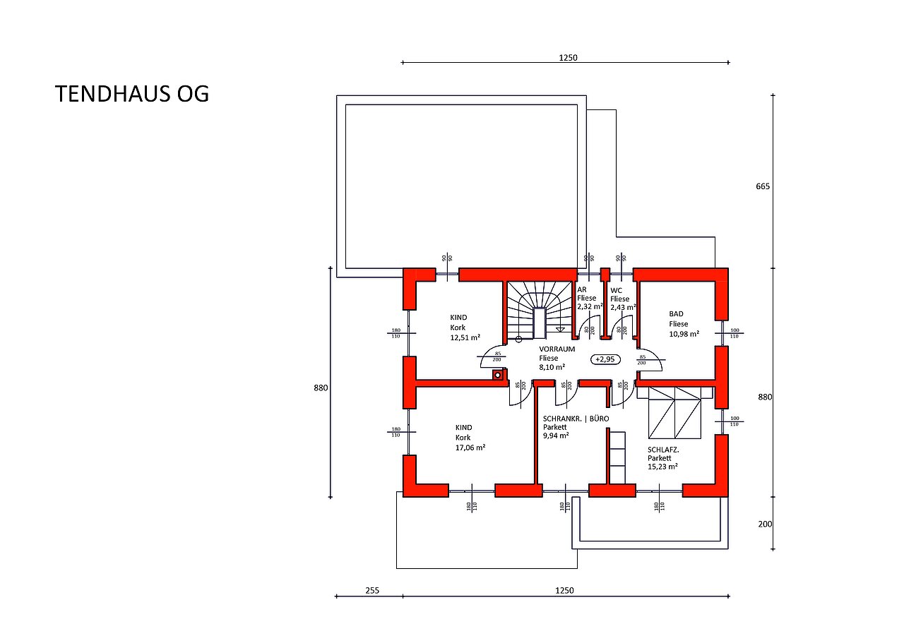
OG: | 78 m² |
|
|
Terrasse: | 38 m² |
Garage: | 55 m² |
ERDGESCHOSS
Nutzfläche: | 170 m² |
|
|
EG: | 89 m² |
OG: | 81 m² |
|
|
Terrasse: | 38 m² |
Garage: | 55 m |
ERDGESCHOSS
Nutzfläche: | 174 m² |
|
|
EG: | 91 m² |
OG: | 83 m² |
|
|
Terrasse: | 38 m² |
Garage: | 55 m² |
Dieser Grundriss hat eine einfache Raumaufteilung mit einem großzügigen Koch-/ Essbereich. Der Wohnbereich wird durch die überdachte, windgeschützte Terrasse in den Garten verlängert und kann bei Bedarf vom Essbereich abgetrennt werden.
Wohnen ist auf einer Ebene barrierefrei möglich. Abstell- und Technikraum sind in die Garage integriert.
Grundriss OBERGESCHOSS
Nutzfläche: | 164 m² |
|
|
EG: | 86 m² |
OG: | 78 m² |
OBERGESCHOSS
Nutzfläche: | 170 m² |
|
|
EG: | 89 m² |
OG: | 81 m² |
OBERGESCHOSS
Nutzfläche: | 174 m² |
|
|
EG: | 91 m² |
OG: | 83 m² |
Der Grundriss bietet Platz für 2 großzügige Kinderzimmer und einen zusätzlichen Raum, der im Bedarfsfall für ein drittes Kinderzimmer genutzt werden kann.
Anschlussdetails
Die Wärmeverluste über die Außenhülle machen einen großen Teil des Energiebedarfs aus. In den letzten Jahren konnte durch die Verbesserung des Wärmeschutzes aller Außenbauteile eine erhebliche Verringerung dieser Transmissionswärmeverluste erreicht werden.
Einen beträchtlichen Anteil der Transmissionswärmeverluste machen die sogenannten "Wärmebrückenverluste" aus. Werden diese in einem guten Standard ausgeführt kann der Heizenergiebedarf erheblich gesenkt werden.



























